The property is state of the art with quality interiors and is only a stones' throw from the City Centre shops and nightlife, with transport links to both Universities.
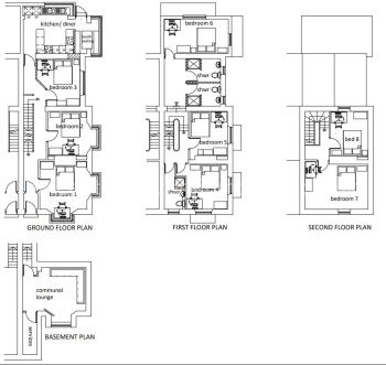
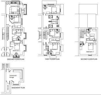
The house has 8 bright bedrooms, 3 bathrooms, unlimited fibre broadband and a cosy lounge with TV.
This house is a new level of student accommodation in Lancaster!
This one will go quickly! BOOK A VIEWING NOW!
Rent:£150 WeekProperty let to individuals and groups
Tenancy Fees Information
8 Bedrooms (2 Available)Available NowSecurity Deposit:£250 Per Person (per year)
Advert Ref:LSUP8832282
No. of bedrooms available2Contract Length (weeks):50Total Contract Price:£7,500.00
Available:
Now
£150FromPer person per week£150.00 PP/Per Week (price for comparison)
Click for a full range of prices
Holding Deposit£100.00 -100.00Security Deposit:£250 Per Person (per year)
Tenancy Fees Information
Tenancy Deposit Scheme:My Deposits (Custodial)
Rent Includes
ElectricityGasWaterBillsInternetCleaningContents Insurance
| Description | Price | Frequency | Price for comparison (per day)* |
| £150 | Per person per week | £21.43 |
* Prices per day are based on 365 days in a year. Whole property prices per day based on a single occupant / family unit
Property Details:
Property Type:
Shared/Whole Property, House
Area:
City Centre
Town:
Lancaster
Total number of bedrooms:
8
Heating:
Gas Central
Shared Facilities:
- Bicycle Storage
- Broadband Internet
- Dishwasher
- Double Glazing
- Fridge Freezer
- Garden
- Ground Floor Bathroom
- Ground Floor Bedroom
- Lift
- Lounge
- Microwave
- Off Road Parking
- On Site Parking
- Onsite Launderette
- Permit Parking
- Shower
- Telephone
- Television
- Tumble Dryer
- Washing Machine
- Wireless Internet
Private Facilities:
- Cooking Facilities
- Double Bed
- En-Suite
- Telephone
- Television
Suitable For:
- Children
- Couples
- Family
- Females
- Individuals
- Males
- Mixed Group
- Pets
- Postgraduates
- Staff
- Undergraduates
Safety & Security:
- 24/7 Staff
- Burglar Alarm
- Carbon Monoxide Alarm
- CCTV
- Fire Alarm System
- Fire Extinguisher
- Key Code Entry System
- Smoke Alarm(s)
Mobility
- Adjustable Kitchen Facilities
- Ground Floor Bathroom
- Ground Floor Bedroom
- Hearing/Visual Adaptations
- Level Access Throughout
- Moveable Access Ramp
- Permanent Access Ramp
- Wheelchair Accessible Facilities
Number of Facilities:
Bathrooms3
Fridge Freezers2
Showers3
Toilets3
Electrical Certified
Electrical Certificate Expires31/08/2028
Gas Certificate
Gas Safety Certificate Expires12/05/2026
HMO Certified
HMO Expires21/06/2029
EPC Certificate Expires04/03/2029
| ENERGY EFFICIENCY RATING |
| |
Actual |
Poss |
(92+)A
(81-91)B
(69-80)C
(55-68)D
(39-54)E
(21-39)F
(1-20)G
|
67
|
79
|
| ENVIRONMENTAL IMPACT RATING |
| |
Actual |
Poss |
(92+)A
(81-91)B
(69-80)C
(55-68)D
(39-54)E
(21-38)F
(1-20)G
|
58
|
73
|
Please mention Lancaster University Homes when booking viewings
Unable to load Google Map
- Please ensure you have JavaScript installed and enabled, and that your internet browser is up to date.
- If you were prompted to block or allow content from other websites when entering this page, you need to select to allow the content. [ Reload this page ]
Note: Map pins show approximate property locations.
Travel Times
The asking rent may not include letting fees. Depending on your circumstances and the property you select there may be the following upfront fees:
- General administration fees
- Reference fees (including credit checks, bank, guarantor, previous landlord, etc.)
- Application fees
- Fees for drawing up tenancy agreements
- Inventory fees (including check in and check out fees)
- Guarantor arrangement / application fees
- Additional occupant fees
- Pets disclaimer fees / additional pet deposit
Fees may be charged on a per property, per person or per tenancy basis.